Opret en boligagent og modtag en mail så snart der kommer en ledig bolig, der matcher dine kriterier.





KNUDS er et unikt ejendomsprojekt beliggende på hjørnet af Knudrisgade og Nørrebrogade, hvor historie og moderne arkitektur mødes. Ejendommen tilbyder både attraktive boliger og fleksible erhvervslejemål, skabt til at imødekomme behovene hos fremtidens lejere.
Indflytning pr. 1/4-2025.
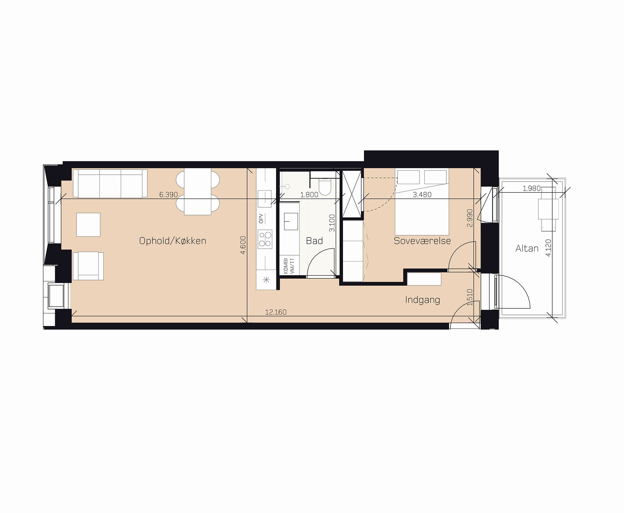
Med 98 lejligheder i varierende størrelser fra 40 til 122 m² finder du boliger, der passer til alle livssituationer – fra studerende til børnefamilier. Lejepriserne starter fra kun 7.300 kr./måned. Alle lejligheder er designet med fokus på funktionalitet og æstetik. De byder på moderne komfort og kvalitetsinventar. Mange af boligerne har egen privat terrasse, som skaber en naturlig forlængelse af hjemmet.
Skriv dig på interesselisten og vær den første til at blive opdateret på projektets status
Tagterrasse: Baghusets fælles tagterrasse på Stålstien inviterer til afslapning og socialt samvær under åben himmel, med gode solforhold hele dagen.
Gårdrum: Et grønt, indbydende gårdrum omgivet af bygningerne mod Nørrebrogade og Stålstien, perfekt til afslapning og fælles aktiviteter.
P-kælder: Mulighed for leje af privat parkeringsplads med mulighed for installation af ladestander til elbiler.
Cykelparkering og service: Rigelig plads til alle typer cykler – elcykler, ladcykler og almindelige cykler – samt en dedikeret pusleplads til vask og vedligeholdelse i parkeringskælderen
Depotrum: Til hvert lejemål hører et praktisk depotrum i kælderen.
Perfekt beliggenhed – Tæt på alt, hvad Aarhus har at byde på
KNUDS ligger kun 1,5 km fra Aarhus Universitet, hvilket gør det til et oplagt valg for studerende og ansatte. På cykel tager det blot 5-7 minutter at nå campus.
Aarhus Universitet
Letbanen
Havnebadet
Latinerkvarteret
PureGym
Her kan du finde mere information om de forskellige boligtyper, placering og priser.
I KLH Gruppen beskæftiger vi os både med boliglejemål i nybyggeri og i eksisterende ejendomme. Samlet set ejer og udlejer vi knap 1.300 lejeboliger hovedsageligt i byerne Randers, Aarhus, Horsens, Hedensted, Vejle og Kolding.
Vi sidder klar til at hjælpe dig med dine spørgsmål. Ring eller skriv endelig til os, og vi vender retur til dig.